螺纹锁紧环换热器结构组成及密封原理,你真的懂了吗?
螺纹锁紧环换热器是能在高温高压工况下进行热交换的换热设备。具有结构紧凑,密封可靠等优点,在炼油加氢裂化、加氢脱硫装置中得到广泛应用。但在生产过程中由于力的传递作用及动态平衡困难,极易产生累积误差造成隔板压碎或者无法密封等事故。但是由于其内部构件复杂,配合精密,检修过程需使用专用工具,人机配合作业难度较大。
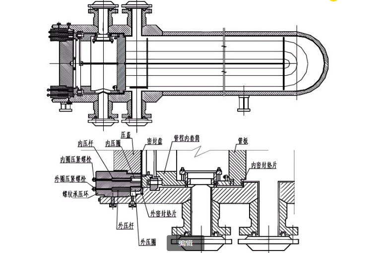
结构组成及密封原理
高压换热器的组成有哪些?

高压换热器密封原理是什么?
(1)壳程的密封过程∶紧固内圈压紧螺栓-内压杆-内压圈-隔板垫环-顶压螺栓-对开键环-管箱内筒-盘根压环-盘根-盘根压环-壳程。
(2)管程的密封过程∶紧固外圈压紧螺栓-外压杆-外压圈-隔板-外密封热圈-管程。
高压换热器检修的重点和注意事项有哪些?
1. 螺纹锁紧环螺栓拆:待螺纹锁紧环内外圈螺栓温度降到200℃左右时迅速完成浇柴油过程避免螺栓热粘接。每拆卸一个螺栓即抹上高温抗咬合剂再立即旋入螺纹孔中,防止此时设备内部压力太大溢出介质伤人。吊装螺纹锁紧环要垂直放好,注意压力环和推杆不能脱落。把连接锁紧环和器械的螺栓拧出,并拆下装配工具。
2.拆卸对开键环:把对开键环从底部开始逆时针作好顺序标记。用力矩扳手从底推进螺丝。换热器对开键环其中有三块是带有斜面的,倾斜角度先取出带斜面的对开键环,然后依次倾斜角度取出各对开键环,按位号及标记顺序放好。
3.拆卸压力套筒及管束:吊车吊装螺纹保护套筒固定在管槽盖顶部螺栓上,安装到管槽中对锁紧环大螺纹实施保护,用螺栓连接好压力套筒和管束。确保压力套筒和管束与专用工具的连接牢靠。用1台吊车小钩吊住拆卸压力套筒与管束整体的专用工具,用配重找好平衡。缓慢拉出压力套筒与管束的整体,要注意压力套筒与换热器壳体的轴向间隙,调整配重位置时刻保持抽管束时的整体平衡,防止偏斜强力抽芯。

主要技术施工步骤
螺纹锁紧环内外圈螺栓浇柴油→螺纹锁紧环→定位隔板→隔板垫环→对开键环→分隔箱盖压力→套筒及管束清洗检查修复过→回装管束及压力套筒→调整对开键环→压力套筒填料压盖换热器壳程→试压→分隔箱盖→隔板垫环→定位隔板→螺纹锁紧环换热器管程试压。